projekt
kontakt
om
projekt
kontakt
om
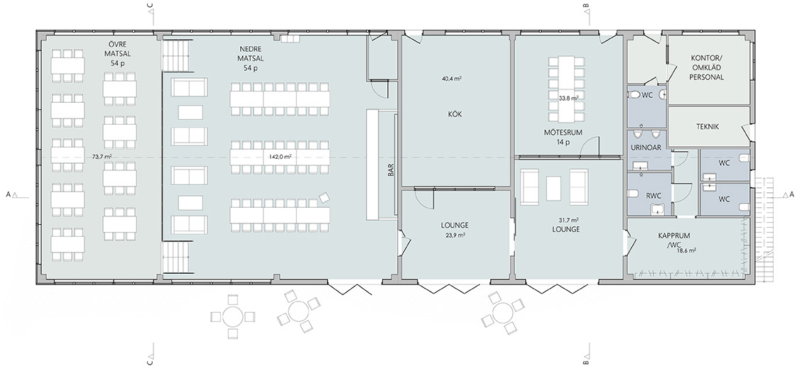
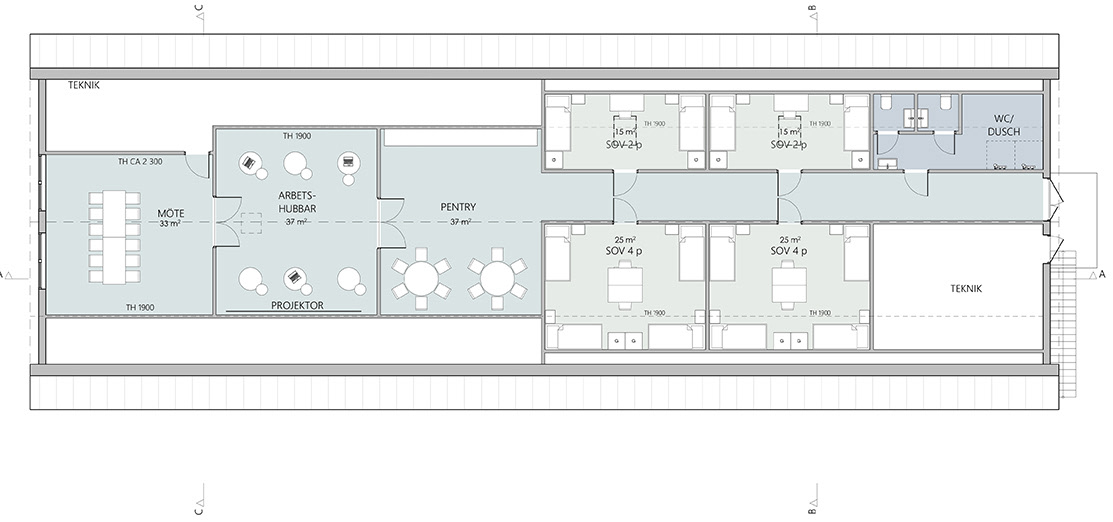
Byggnad 147 Snickeriet
Vid försvarets gamla marina varv utanför Fårösund står ett nedlagt snickeri. Gestaltningsidé för ny användning. Samarbete med Engma AB.
You may also like
Snäckgärdsbaden
2022
Attefallshus Tofta
2022
Fotomontage
2018
Fårö Bergmancenter
2019
BG73
2021
Boländerna
2018
CV
2018
Gotska sandön
2018
Kv Triangeln
2018
Katolska kyrkan, Visby
2018
↑
Back to Top